logo
 
 

Signal Lights On 2720 Driving Me Nuts

So on my last trip I had signal lights in the back of my 2720 and then it dropped out when I was leaving the campground. That day it did rain. MULTIM...

 
 

ISO Used TM In Colorado

Todd & Jan from denver co area. Newbies to the forum first post. First off this is a great forum with oodles of support. We are interested in acqui...

 
 

LED Replacement Bulb Issue With F150

Hi all, I would like to share an interesting issue that came up. As shown in my signature, we have a 2007 3023QB towed with a 2017 F150. Backgroun...

 
 

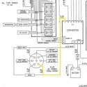
Bargman Trailer Ground On The Trailmanor

Does anyone know if there is a ground from the 7pin trailer anywhere on the Trailmanor? I own a 2005 trailmanor 2720 and apparently I may have an ins...

 
 

Soft Spot In Tub Floor

2010 3023... As we continue our work on our NU2US TM, while doing the shower mod (similar to what we did with our old TM) I quickly noticed there is ...

 

How To Move Into An RV Full Time

Are you looking to move into an RV? Here's how to plan for full-timing, including buying your first RV, downsizing, and more!

 

Full-timing On A Budget Tips and Tricks

Don't know how to pay for full-time RVing? These tips for full-timing on a budget can get you on the road and stay there without going broke.

 

Can You Refinance An RV Loan?

Can you refinance an RV loan? The simple answer is yes - but that depends on several factors. Here's what you need to know.

 
 

To view this email as a web page, click here


To view past issues of this newsletter, click here


TrailManor Owners is owned & operated by Social Knowledge, LLC
2600 E Southlake Blvd Suite 120-361 Southlake, Texas 76092

Click here to view our privacy policy.

Questions or Comments? Contact support at [email protected].

Add [email protected] to your address book to ensure future emails arrive.

Join us on Facebook Join us on Facebook